Venta 350.000€ - Apartamento, Residencial
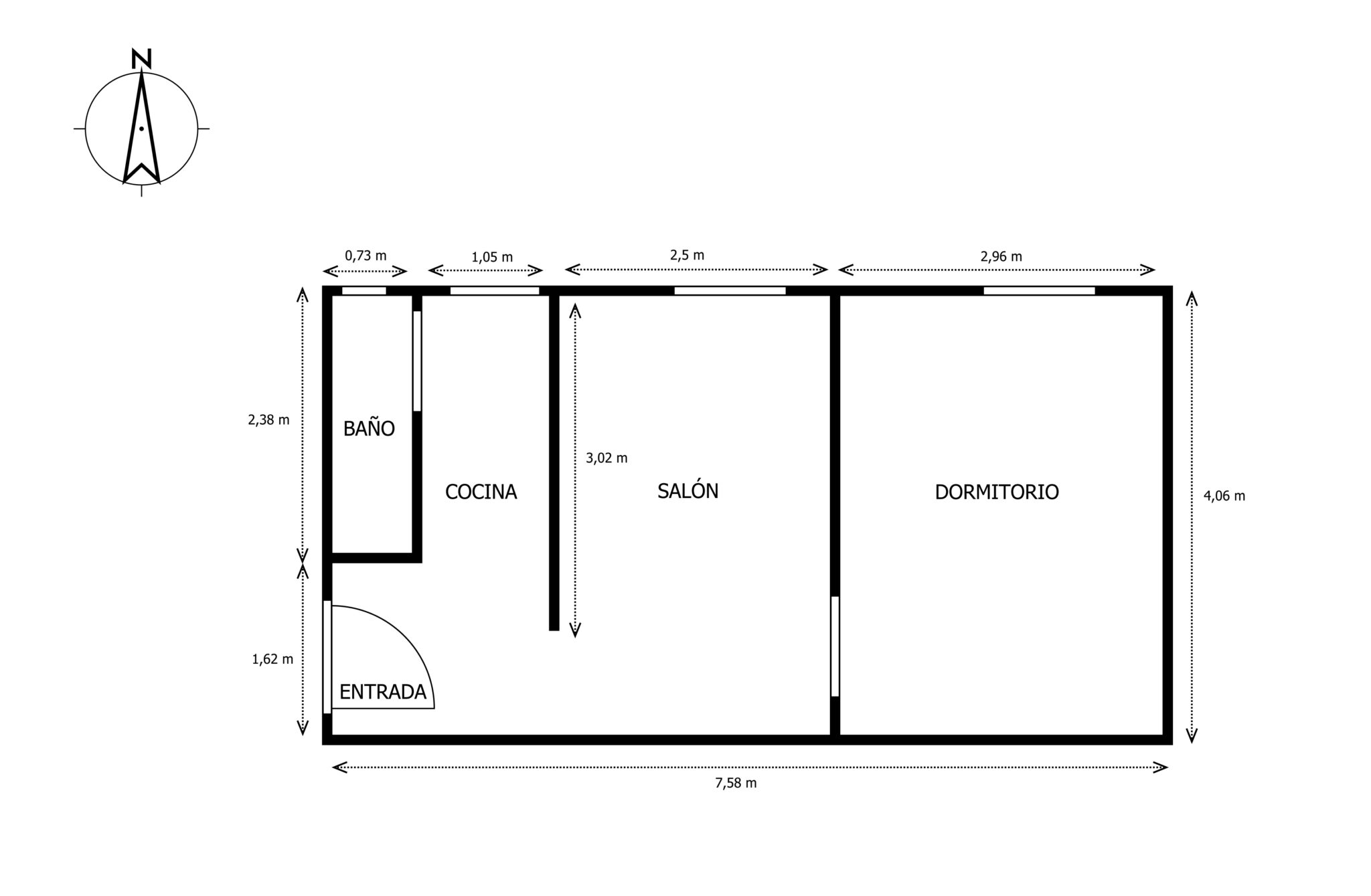
Vivienda Capital vende en exclusiva apartamento reformado y luminoso. 40 m2 construidos y 30 m2 útiles, distribuidos por entrada, salón, cocina, baño y 1 dormitorio. Totalmente equipado para entrar a vivir, ventanas con doble acristalamiento, puertas correderas, suelos parque y gres, Split frio y calor.
Edificio totalmente rehabilitado en 2025. Gastos comunidad 40 € e IBI 212 €
La edificación en cuestión está ubicada en una estratégica zona con inmejorables prestaciones, tanto a nivel de transporte público, como a nivel de infraestructura comercial, hostelería y de ocio, ofreciendo un ambiente urbano dinámico, pero al mismo tiempo equilibrado y residencial. No dude en visitarla. Muy interesante como inversión y para vivir.















